Domum Logo

Creamos espacios que se adaptan a tu forma de vivir.

diseño-interior-casas

Redistribución Inteligente de Hogares

Espacios que acompañan, ordenan y transforman la vida cotidiana.

Rediseñamos la distribución de tu casa para lograr:

✔ funcionalidad

✔ claridad

✔ armonía

✔ fluidez

✔ bienestar cotidiano

Todo desde una mirada humana, accesible y con intención.

diseño-fachada-casas

¿Qué incluye la Redistribución Inteligente?

1. Análisis profundo del uso actual del espacio

Te escuchamos, observamos cómo vivís tu casa y detectamos:

✔ puntos de caos o saturación

✔ espacios desperdiciados

✔ recorridos incómodos

✔ ambientes que no acompañan tus rutinas

✔ necesidades reales no cubiertas

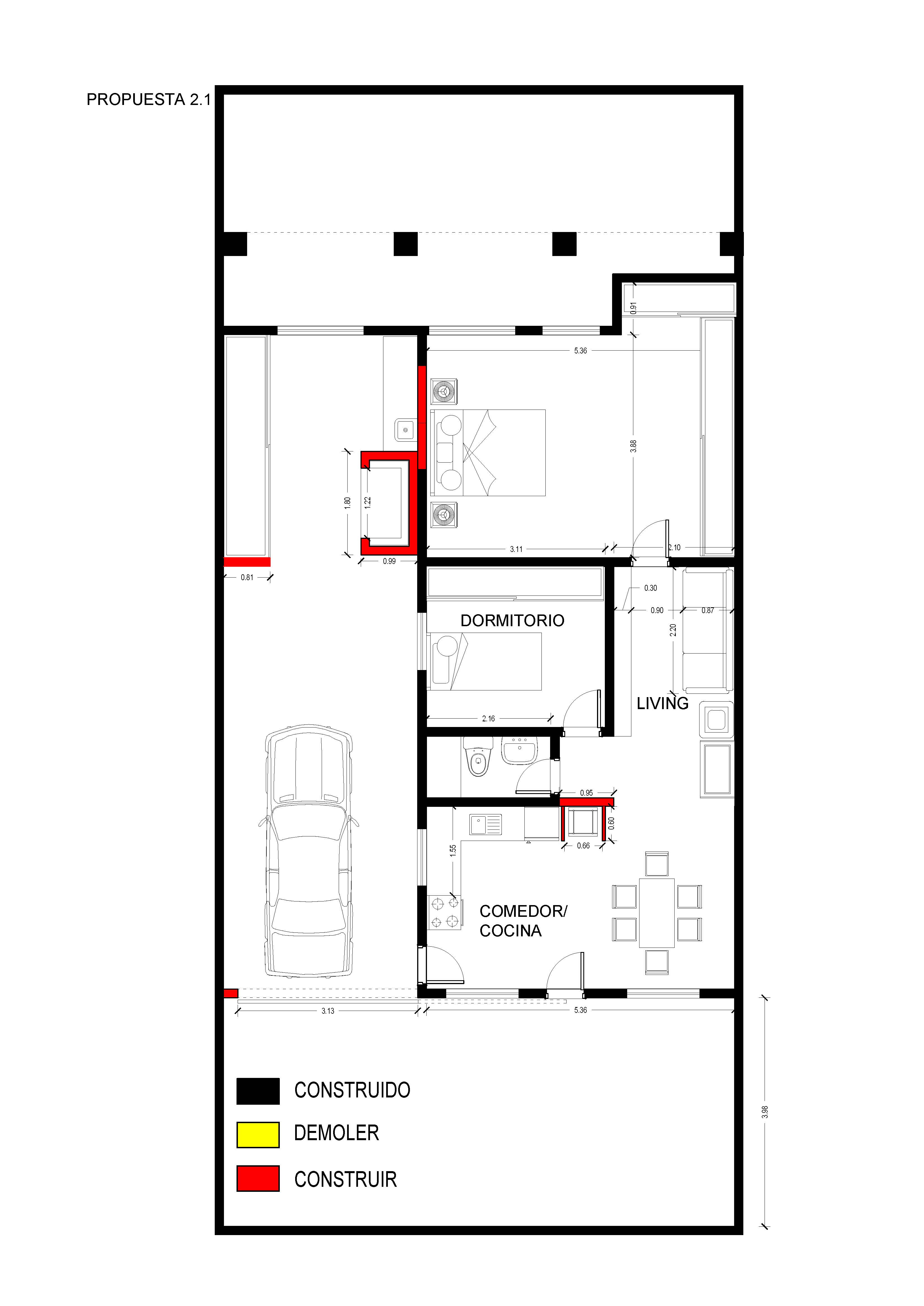
2. Propuesta de redistribución funcional

La redistribución puede incluir:

✔ mover una puerta

✔ derribar o levantar un tabique

✔ ampliar un ambiente

✔ integrar espacios

✔ crear zonas nuevas con mínima obra

✔ cambiar sectores entre sí (ej: dormitorio ↔ escritorio)

✔ redefinir circulaciones

La clave: máximo impacto con la mínima intervención necesaria.

3. Zonas nuevas según tu vida

Creamos función donde antes había ruido:

✔ rincones de calma

✔ espacios de lectura

✔ zonas de trabajo sin estrés

✔ cocinas que ordenan y simplifican

✔ áreas familiares más fluidas

✔ dormitorios más tranquilos

ANEXO DE COMPLEMENTOS (incluidos)

No se diseña solo la estructura: Diseñamos la experiencia del espacio.

4. Sugerencia de mobiliario (sin compra obligatoria)

Te hacemos una guía de elementos recomendados:

✔ tipos de muebles

✔ tamaños adecuados

✔ materiales amigables

✔ opciones de bajo presupuesto

✔ cómo generar armonía con lo que ya tenés

5. Paleta de tonos personalizada

Para que el ambiente final transmita:

✔ calma

✔ amplitud

✔ coherencia

✔ estilo

✔ bienestar visual

Incluye:

✔ paleta principal

✔ paleta secundaria

✔ acentos

✔ texturas que aportan calma

✔ materiales sugeridos

6. Selección de plantas según estilo y luz

Podemos sugerir:

✔ plantas que purifiquen

✔ plantas que aporten calidez

✔ plantas para poca luz

✔ macetas y tamaños adecuados

diseño-interior-casas

Resultado final del servicio

Al terminar recibís:

✔ plano antes/después

✔ propuesta de redistribución funcional (por escrito/video)

✔ guía de mobiliario sugerido (imagenes/pdf)

✔ paleta de colores (imagenes/pdf)

✔ plantas recomendadas (imagenes/pdf)

✔ lista de mejoras accesibles (pdf)

✔ recomendaciones para ejecutar la obra (si la hay)

✔ guía de estilo para mantener la armonía

Todo alineado a:

✔ bienestar

✔ calma

✔ funcionalidad

✔ diseño con propósito